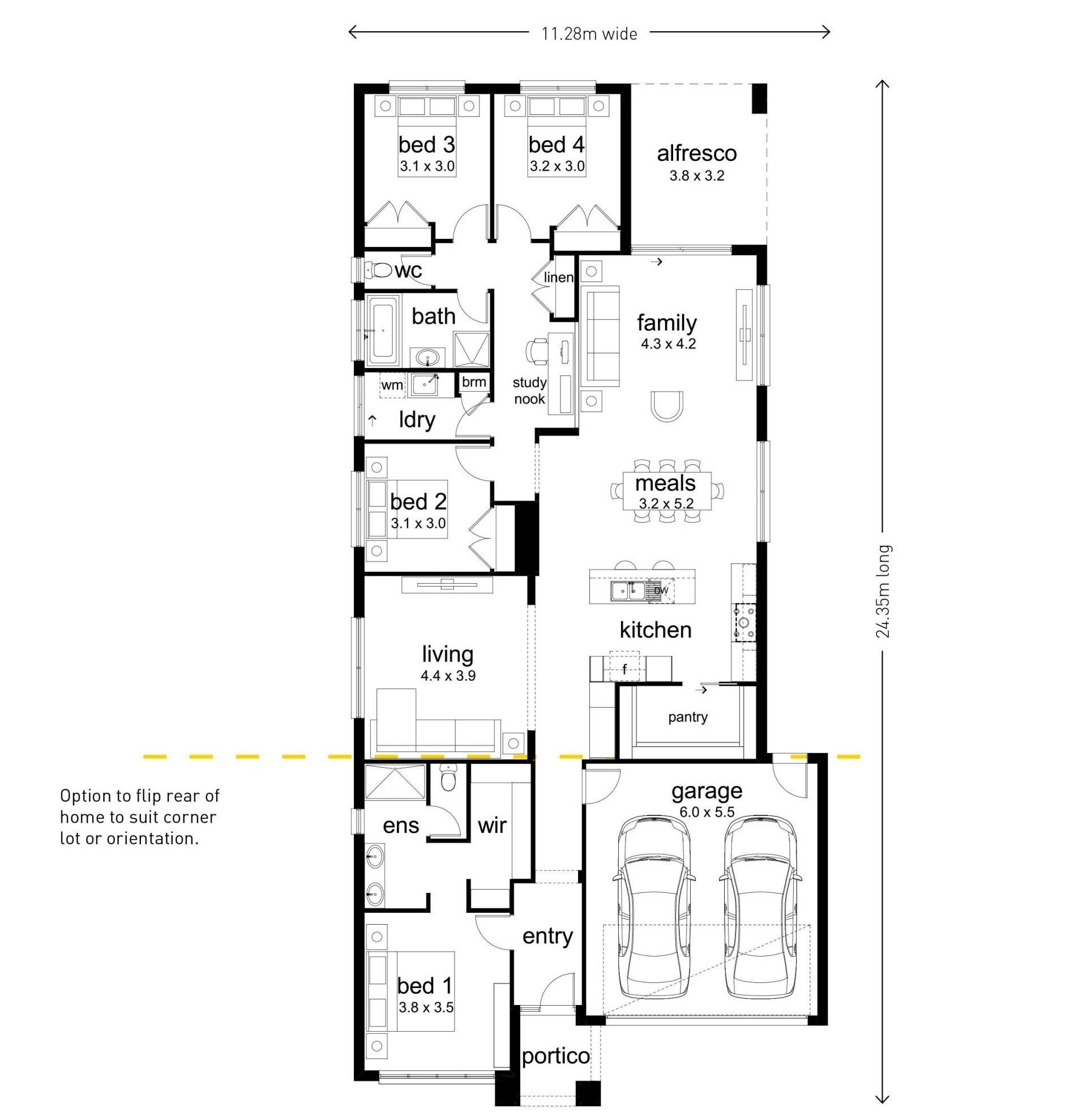
Lot A28
Olinda 263
House and Land
Price from $510,000
Building Size: 239m2
Lot Size: 464m2
Lot Frontage: 14.14m
Inspire Inclusions*:
- Landscape and Fence
- Westinghouse 600mm Stainless Steel Appliances
- Laminate benchtop
- Ceramic tiling and vinyl flooring from SVH Silver Selections range to kitchen, meals, living and hall
- Carpet and underlay to remainder of the home
- 900mmx 900mm framed shower screen
- LED downlights to Living areas.
- Hyne T2 termite resistant timber frame with 25-year guarantee
- Quality Assured with structural guarantee and Maintenance Pledge provided by Southern Vale Home
- Style your home with expert interior designer at SVH Studio
*Upgrades available with the SVH Essentials Inclusion. Images displayed from the SVH Inspire Range. Some fittings are subject to floorplan, design & upgrade.







